Inicio
Meus Projetos
Minhas Fotografias
Fotos Famosas/Inspirações
Fale comigo
Inicio
Meus Projetos
Minhas Fotografias
Fotos Famosas/Inspirações
Fale comigo
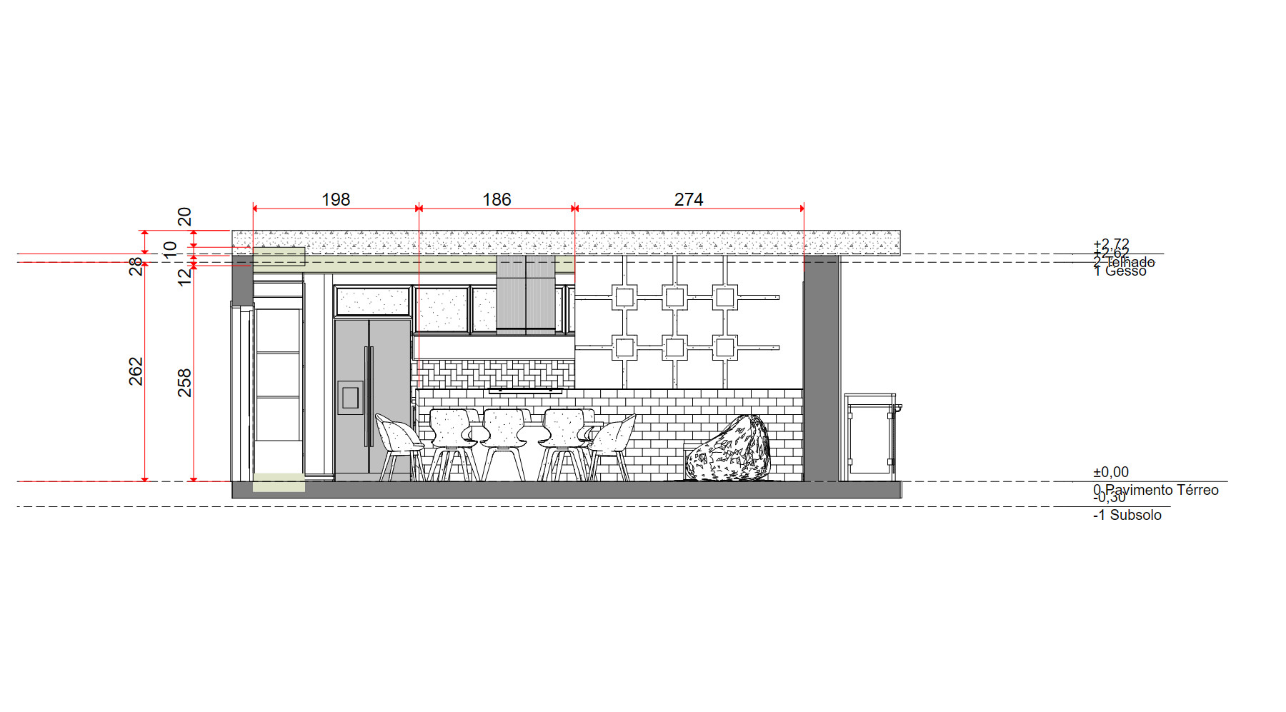
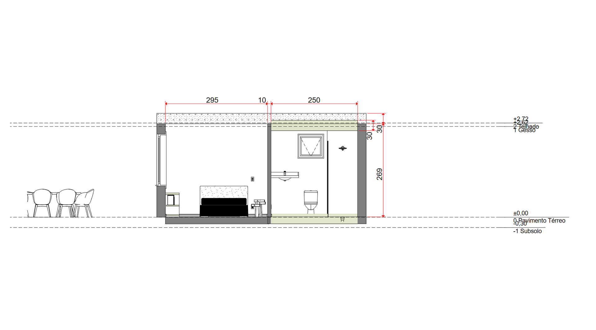
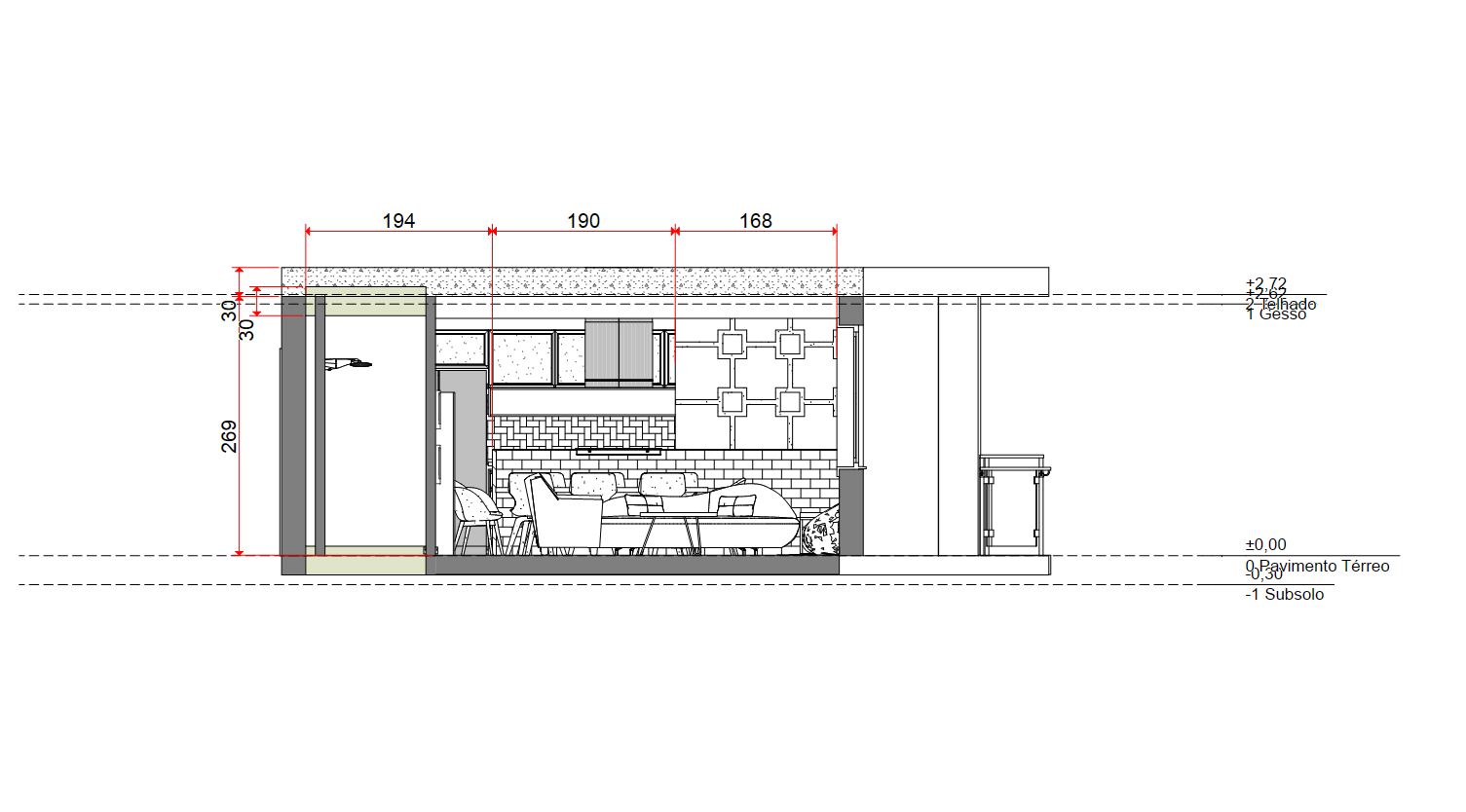
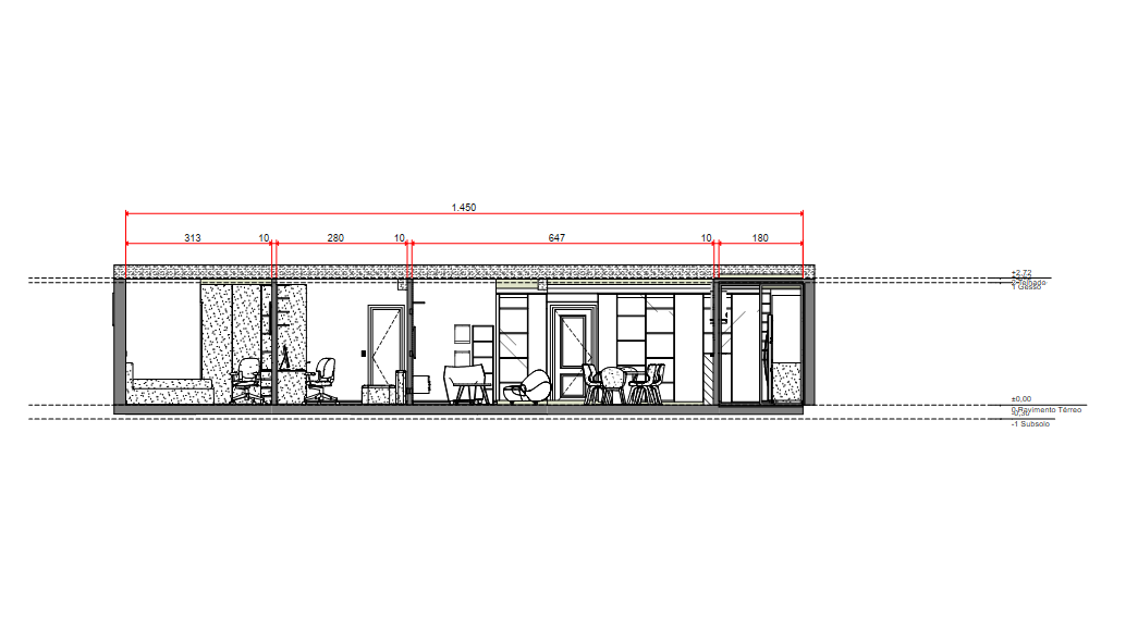
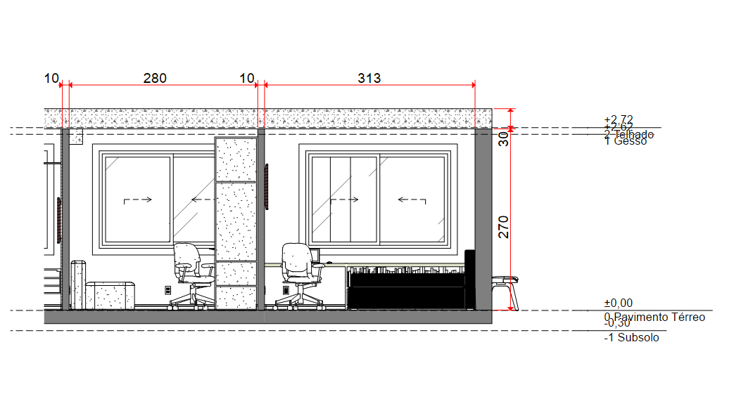
Plantas e Cortes
You may also like
Fotos
Mauro Inc.
EStaFãcil - Jerönimo Coelho - Cafeteria Container
Modelagens Genéricas
EstaFácil - Matriz - Porto Alegre
Projeto Universitário FLOAT 311
Design Gráfico e Logomarcas
Calendário Arquitetura 2023
EstaFãcil - LaSalle - Canoas
Desafio Universitário Lorenzetti 2023
↑
Back to Top